Bifamiliare in vendita

Montegridolfo, via tavolino - Trebbio Di Montegridolfo
€ 255.000
7 locali 7 locali
370 Mq 370 Mq
2 bagni 2 bagni

Bifamiliare in vendita

Montegridolfo, via tavolino - Trebbio Di Montegridolfo

Descrizione annuncio

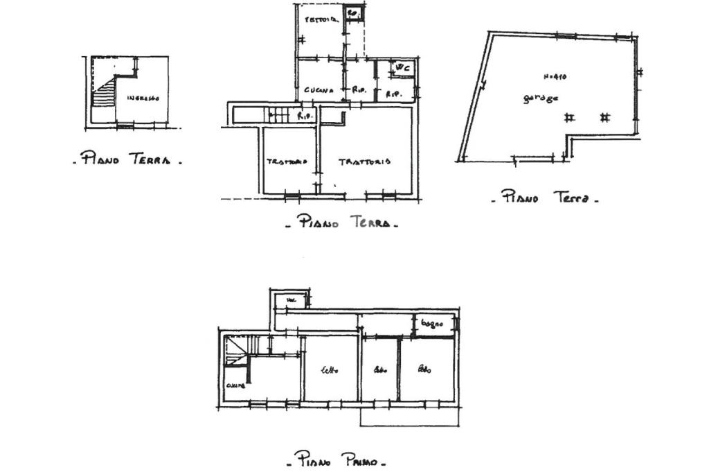
Casa singola di tipo bifamiliare in vendita a Trebbio di Montegridolfo, ideale per due nuclei familiari.

L’Immobile è suddiviso in due unità abitative entrambe con ingressi indipendenti: al piano terra appartamento da ultimare (trilocale/quadrilocale) in corso di variazione catastale per essere portato a civile abitazione; al primo piano ampio quadrilocale.

Scoperto di proprietà di 157 mq, possibilità di parcheggio, garage fuori terra di 81 mq e sottotetto. Dotazioni: aria condizionata, caldaia nuova e addolcitore.

L’immobile si presta a diverse soluzioni di arredo e utilizzo, ideale per chi cerca una residenza che possa ospitare una famiglia numerosa o per chi desidera avere spazi dedicati a studio o hobby.

Situata in una zona tranquilla, la casa offre la possibilità di vivere in un contesto sereno e a breve distanza dai principali servizi e collegamenti. Un'opportunità unica per chi desidera personalizzare e trasformare una proprietà in un'accogliente dimora.

Mostra tutto

Nelle vicinanze

Trasporto pubblico Trasporto pubblico
Trasporto pubblico
1,1 Km
Bar Bar
Il ritrovo del Vecchio Forno
1,1 Km
Ristoranti Ristoranti
Ristoranti
990 m
Trattoria del Castello da Ernesta
1,0 Km
Il ritrovo del Vecchio Forno
1,0 Km
Grotta dei Gridolfi
1,1 Km
Terrazza panoramica dell'Osteria dell'Accademia
1,1 Km
Mostra tutto

Caratteristiche

Rif.:
61166385
Piano:
Su più livelli di 2
Totale piani:
2
Box:
1
Balconi:
1
Camere da letto:
4
Mostra tutto
Prezzo Prezzo
€ 255.000
Rata mutuo Rata mutuo
€ 1.210 / mese
Spese annue Spese annue
€ 0
Proponi il tuo prezzoProponi il tuo prezzo

Classe Energetica

G
G
G
G
G
G
G
G
G
EP globale non rinnovabile:
300.00 kW h/m² anno
EP globale rinnovabile:
30.00 kW h/m² anno
EP invernale del fabbricato:
EP estiva del fabbricato:
Anno di costruzione:
1970
Riscaldamento:
Autonomo
Tipo impianto:
A radiatori
Tipo alimentazione:
Metano

Ti interessa visionare l'immobile?

Fissa un appuntamento  Fissa un appuntamento

Richiedi informazioni

Clicca su Leggi per aprire l'informativa
* Questi campi sono obbligatori

Calcola il tuo mutuo

Semplice e senza impegno
Anticipo

( % )
Mutuo

( % )

pochi semplici passi

inserisci i tuoi dati
Questionario completato
Grazie per aver richiesto un appuntamento senza impegno con un nostro Consulente del Credito e Assicurativo.

Hai inserito correttamente tutti i dati necessari e a breve riceverai una e-mail con un link da convalidare per inviare i tuoi dati.
Affiliato
Studio San Giovanni Srl
Via Alberto Giacometti, 18 61022 Vallefoglia (PU)
Via Alberto Giacometti, 18 61022 Vallefoglia (PU)
Zona: Vallefoglia – Montelabbate – Borgo Santa Maria – Pozzo Alto – Montecchio – Bottega – Morciola
Mostra su mappa
Orari: Lun Ven 09- 13 / 15 - 19.30 Sab 09 - 13
Affiliato
Studio San Giovanni Srl
Via Alberto Giacometti, 18 61022 Vallefoglia (PU)

2026 Tecnocasa Franchising S.p.A. - P. IVA 08365160152 - Via Monte Bianco 60/A 20089 Rozzano (MI). Ogni agenzia ha un proprio titolare ed è autonoma. Privacy policy | Policy utilizzo | Cookie policy