Casa indipendente in vendita

Vallefoglia, via pascoli
€ 240.000
8 locali 8 locali
295 Mq 295 Mq
2 bagni 2 bagni

Casa indipendente in vendita

Vallefoglia, via pascoli

Descrizione annuncio

Nel comune di Vallefoglia, proponiamo in vendita una casa indipendente di ampia metratura, ideale per chi cerca spazio e comfort.

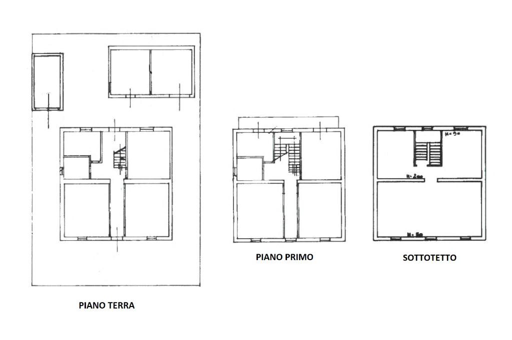
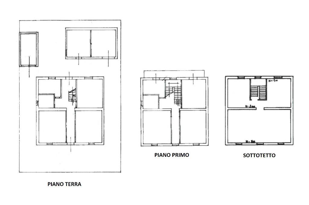
L'immobile, costruito nel 1974, si sviluppa su due livelli oltre a sottotetto uso ripostigli e sviluppa una superficie complessiva di 295 mq commerciali.

Al piano terra è presente la cucina abitabile, la sala da pranzo, il salone, ampio disimpegno, bagno e camera. Al piano primo si sviluppa la zona notte con quattro ampie camere, disimpegno, bagno e balcone. Sottotetto uso ripostiglio.

Fuori terra, nel lotto dell’immobile, sono presenti il garage e due cantine.

Il giardino di 180 mq offre un'oasi di tranquillità e uno spazio ideale per attività all'aperto.

L’immobile presenta finiture datate e necessita di ristrutturazione, a tal proposito sono pubblicate anche immagini fotografiche generate con IA che illustrano l’immobile come potrebbe divenire a seguito di idonea ristrutturazione.

Questa proposta immobiliare risulta davvero molto interessante alla luce dell’indipendenza, dell’ampia metratura, del giardino e dalla posizione che offre privacy e tranquillità pur essendo nelle vicinanze del centro e comunque ben collegata a tutte le attrazioni della zona.

Mostra tutto

Nelle vicinanze

Trasporto pubblico Trasporto pubblico
Trasporto pubblico
140 m
Scuole Scuole
Infanzia comunale
370 m
Scuola elementare Carlo Alberto dalla Chiesa
410 m
Scuole
1,5 Km
Scuola Materna
1,5 Km
Scuola Primaria
1,6 Km
Farmacia Farmacia
Farmacia
270 m
Supermercati Supermercati
Simply
200 m
Negozi Negozi
Antichi Sapori
160 m
Diana Boutique
200 m
Punto e Virgola
270 m
Pompiglio
360 m
Ex Forno
660 m
Bar Bar
La Bottega
110 m
Morò
150 m
Bar
790 m
Ristoranti Ristoranti
Sottopasso
400 m
Ristoranti
1,4 Km
Mostra tutto

Caratteristiche

Rif.:
61164859
Piano:
Su più livelli di 2
Totale piani:
2
Box:
1
Terrazzi:
1
Camere da letto:
5
Mostra tutto
Prezzo Prezzo
€ 240.000
Rata mutuo Rata mutuo
€ 1.121 / mese
Spese annue Spese annue
€ 0
Proponi il tuo prezzoProponi il tuo prezzo

Classe Energetica

G
G
G
G
G
G
G
G
G
EP globale non rinnovabile:
379.39 kW h/m² anno
EP globale rinnovabile:
2.59 kW h/m² anno
EP invernale del fabbricato:
EP estiva del fabbricato:
Anno di costruzione:
1974
Riscaldamento:
Autonomo
Tipo impianto:
A radiatori
Tipo alimentazione:
Metano

Ti interessa visionare l'immobile?

Fissa un appuntamento  Fissa un appuntamento

Richiedi informazioni

Clicca su Leggi per aprire l'informativa
* Questi campi sono obbligatori

Calcola il tuo mutuo

Semplice e senza impegno
Anticipo

( % )
Mutuo

( % )

pochi semplici passi

inserisci i tuoi dati
Questionario completato
Grazie per aver richiesto un appuntamento senza impegno con un nostro Consulente del Credito e Assicurativo.

Hai inserito correttamente tutti i dati necessari e a breve riceverai una e-mail con un link da convalidare per inviare i tuoi dati.
Affiliato
Studio San Giovanni Srl
Via Alberto Giacometti, 18 61022 Vallefoglia (PU)
Via Alberto Giacometti, 18 61022 Vallefoglia (PU)
Zona: Vallefoglia – Montelabbate – Borgo Santa Maria – Pozzo Alto – Montecchio – Bottega – Morciola
Mostra su mappa
Orari: Lun Ven 09- 13 / 15 - 19.30 Sab 09 - 13
Affiliato
Studio San Giovanni Srl
Via Alberto Giacometti, 18 61022 Vallefoglia (PU)

2026 Tecnocasa Franchising S.p.A. - P. IVA 08365160152 - Via Monte Bianco 60/A 20089 Rozzano (MI). Ogni agenzia ha un proprio titolare ed è autonoma. Privacy policy | Policy utilizzo | Cookie policy